
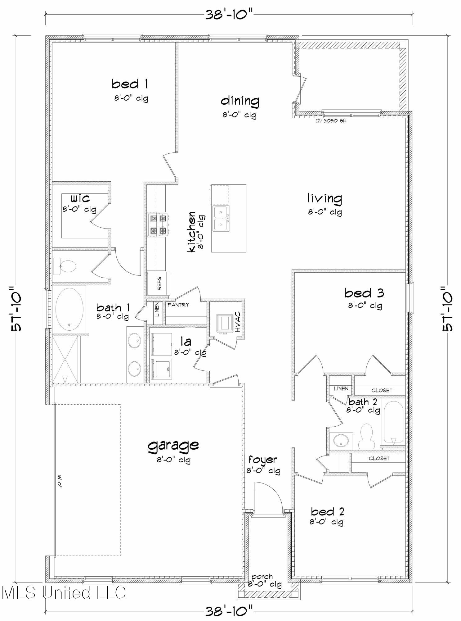
The Aria is a single-story floorplan at our Kings Crossing community in Lucedale, Mississippi. Inside this 3-bedroom, 2-bathroom home, you'll find over 1,600 square feet of comfortable living. The Aria optimizes living space with an open concept kitchen overlooking the living area, dining room, and covered porch. Entertaining is a breeze, as this popular home features a living and dining in the heart of the home, with covered porch just steps away in your backyard. The spacious kitchen features stainless steel appliances, a convenient island with granite countertops and a walk-in pantry with ample storage. The primary bedroom located in the rear of the home has its own attached bathroom that features a walk-in closet and all the space you need to get ready in the morning. Sharing a sink isn't a worry with the double vanity. Whether these rooms become bedrooms, office spaces, or other bonus rooms, there is sure to be comfort with no carpet. Two additional bedrooms share a second bathroom. This home also features a nice laundry room space with privacy doors and a two-car garage. Like all homes in Kings Crossing, the Aria includes a Home is Connected smart home technology package which allows you to control your home with your smart device while near or away. Pictures may be of a similar home and not necessarily of the subject property. Pictures are representational only.
| MLS # | 4130291 |
|---|---|
| Listing Type | For Sale |
| Style | House |
| Sub-Type | Resale |
| Status | Active |
| Year | 2025 |
| Days On Site | 7 |
| Listing Provided By | D R Horton | Susan Siemiontkowski |
| Bed(s) | 3 |
|---|---|
| Bath(s) | 2 Total |
| SQ Feet | 1,650 |
| Garage | 2 |
| Story(s) | 1 |
| Acreage | 0.32 |
| Rooms Total | 0 |
|---|---|
| Cooling Yes / No | Yes |
| Cooling | Central Air, Electric |
| Heating Yes / No | Yes |
| Heating | Central, Electric |
| Interior Features | Double Vanity, Entrance Foyer, Granite Counters, Kitchen Island, Open Floorplan, Pantry, Smart Home, Smart Thermostat, Soaking Tub, Walk-In Closet(s) |
| Window Features | Double Pane Windows, Screens, Shutters |
| Appliances | Dishwasher, Disposal, Electric Range, Microwave, Plumbed For Ice Maker, Stainless Steel Appliance(s) |
| Exterior Features | Lighting |
|---|---|
| Roof | Architectural Shingles |
| Security Features | Carbon Monoxide Detector(s), Smoke Detector(s) |
| Construction Materials | Vinyl, Board & Batten Siding, Brick |
| Foundation Details | Slab |
| Lot Features | Interior Lot |
| Attached Garage Yes / No | No |
|---|---|
| Parking Features | Garage Door Opener, Garage Faces Side, Concrete |
| Community Features | Sidewalks |
|---|
| Utilities | Electricity Connected, Natural Gas Available, Sewer Connected, Water Connected, Smart Home Wired, Underground Utilities |
|---|
| Property | 264 |
|---|
| State | MS |
|---|---|
| County | George |
| City | Lucedale |
| Zip Code | 39452 |
| Area | George |
| Community Name | KIngs Crossing |
| School District | George County |
| Elementary School | Lc Hatcher |
| High School | George County |
| State | MS |
|---|---|
| County | George |
| City | Lucedale |
| Zip Code | 39452 |
| Area | George |
| Community Name | KIngs Crossing |
| School District | George County |
| Elementary School | Lc Hatcher |
| High School | George County |